Świetlica 2017
Świetlica 2017
Przedstawiam dwa pomysły na usytuowanie schodów do przedyskutowania w najbliższą sobotę o godz. 11.
Założenia:
1. wysokość 376cm od podłogi do podłogi jest szacunkowa +/- mam nadzieję, 10cm.
2. przepisy mówią: szerokość biegu 120cm, wysokość stopnia max 17,5cm, w jednym biegu max 17 stopni
3. pkt. 2 wyklucza schody jednobiegowe.
Wersja A:
- wymiary ekranu: 320x180cm (145")
- trudne miejsca na instalację projektora
- więcej miejsca zajęte na podłodze, ale w korzystniejszym miejscu (można tam przenieść kącik dla dzieci)
- prawdopodobnie konieczność wycięcia dwóch belek. Położenie belek było ustalane z góry, a nie wiemy jak się ma ściana wewnętrzna dolna, go kolankowej na górze.
Wersja B:
- wymiary ekranu: 360x200 (161") - projektor zamontowany pod schodami czyli tak jak na wizualizacji
- mniej zajęte miejsca na podłodze
- konieczność wycięcia jednej belki
- może się okazać, że wycięcie belki będzie wymagać podparcia jej filarem. Jeśli tak to trochę słabo z ping-pongiem...
Założenia:
1. wysokość 376cm od podłogi do podłogi jest szacunkowa +/- mam nadzieję, 10cm.
2. przepisy mówią: szerokość biegu 120cm, wysokość stopnia max 17,5cm, w jednym biegu max 17 stopni
3. pkt. 2 wyklucza schody jednobiegowe.
Wersja A:
- wymiary ekranu: 320x180cm (145")
- trudne miejsca na instalację projektora
- więcej miejsca zajęte na podłodze, ale w korzystniejszym miejscu (można tam przenieść kącik dla dzieci)
- prawdopodobnie konieczność wycięcia dwóch belek. Położenie belek było ustalane z góry, a nie wiemy jak się ma ściana wewnętrzna dolna, go kolankowej na górze.
Wersja B:
- wymiary ekranu: 360x200 (161") - projektor zamontowany pod schodami czyli tak jak na wizualizacji
- mniej zajęte miejsca na podłodze
- konieczność wycięcia jednej belki
- może się okazać, że wycięcie belki będzie wymagać podparcia jej filarem. Jeśli tak to trochę słabo z ping-pongiem...
Re: Świetlica 2017
Przy wariancie B, tak wyglądałoby wejścia na poddaszu.
Przy okazji zwracam uwagę na arcyciekawą konstrukcję więźby. Murłata jest podparta na słupkach, które stoją na...? Właśnie to musimy rozpoznać okiem amatorskim w sobotę i fachowym w tygodniu. Nie wiem czy środkowe słupy się o belki stropowe opierają, czy wręcz przeciwnie: podtrzymują je. Fachowe oko ostatnio mówiło, że to konstrukcja wisząca a więc chyba to drugie.
Informacyjnie: jętki są na 220cm, a ten samotny słup na samym środku podpiera kalenicę prostopadłą - nie wymierzyłem, nie narysowałem, nie ma większego znaczenia.
Przy okazji zwracam uwagę na arcyciekawą konstrukcję więźby. Murłata jest podparta na słupkach, które stoją na...? Właśnie to musimy rozpoznać okiem amatorskim w sobotę i fachowym w tygodniu. Nie wiem czy środkowe słupy się o belki stropowe opierają, czy wręcz przeciwnie: podtrzymują je. Fachowe oko ostatnio mówiło, że to konstrukcja wisząca a więc chyba to drugie.
Informacyjnie: jętki są na 220cm, a ten samotny słup na samym środku podpiera kalenicę prostopadłą - nie wymierzyłem, nie narysowałem, nie ma większego znaczenia.
Re: Świetlica 2017
dlaczego wystrzegasz się poprowadzenia schodów "po ścianach?
Re: Świetlica 2017
Przedstaw proszę konkretny pomysł to narysuję.
Re: Świetlica 2017
chodzi mi o to ze schody sa odsuniete od scian ku środkowi sufitu. Nawet tej szczytowej. To mnie zainteresowało dlaczego. Nie ma jak tego mocowac (oprócz podparć) no i zabiera miejsce
Re: Świetlica 2017
Kolankowa ma metr. Nie chcielibyśmy musieć, że użyję takiej konstrukcji, wyczołgiwać się na górze. Po drugie przyjąłem, że wyższy bieg schodów przy ścianie to stracone miejsce na dole. Tj. Przyjemniej pograsz w pingla mając schody nad sobą, niż grając na schodach. Po trzecie wreszcie, jeśli schody będą wchodzić na górę prostopadle do belek stropowych to będzie trzeba wyciąć najmniej trzy, a pewnie cztery. Mam cichą nadzieję, że wycinanąc jedną obędzie się bez filaru.
A co do mocowania to spocznik oczywiście wymaga podparcia natomiast górny bieg można mocować do belek stropowych. Miejsce pod spocznikiem to fajne miejsce dla dzieci: tzw. "baza".
A co do mocowania to spocznik oczywiście wymaga podparcia natomiast górny bieg można mocować do belek stropowych. Miejsce pod spocznikiem to fajne miejsce dla dzieci: tzw. "baza".
Re: Świetlica 2017
Geniusz Tomasza ujawnił się dziś ponownie i oto rozwiązanie które pozostawia wilka sytego (a nawet nażartego) i owcę całą.
Kącik dla dzieci przenosimy pod schody, mamy więcej miejsca na pingponga, oraz wypasiony ekran 176". Ekran skubnie parę złotych więcej z budżetu inwestycji (bo będzie rozwijany a nie malowany) ale spokojnie damy radę.
Kącik dla dzieci przenosimy pod schody, mamy więcej miejsca na pingponga, oraz wypasiony ekran 176". Ekran skubnie parę złotych więcej z budżetu inwestycji (bo będzie rozwijany a nie malowany) ale spokojnie damy radę.
Re: Świetlica 2017
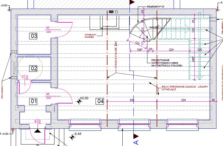
Świetlica 2017 zmienia się w 2018. Aktualne, zatwierdzone formalnie, plany wyglądają mniej więcej tak:
Poddasze:
Parter:
Poddasze:
Parter:
Re: Świetlica 2017
W związku z dużą dostawą książek poszukiwany jest regał możliwie podobny do tego który już mamy.
Może ktoś chętnie pozbędzie się regału?
Może ktoś chętnie pozbędzie się regału?